

Is $92,500 to build a 15x40' gunite pool with a 7x10' baja shelf a fair price?
Project Details
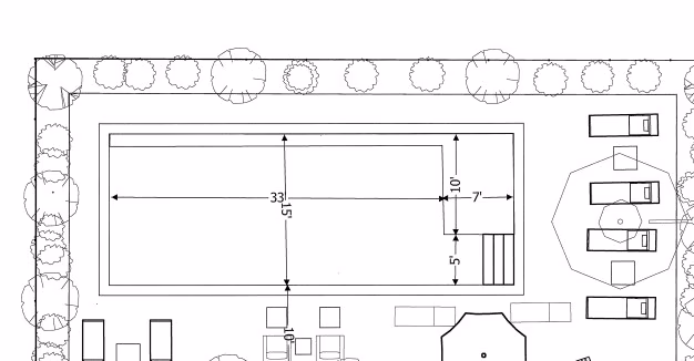
Hello, I thought I would ask the community here on our first pool project. We have never had an inground pool and this is our design along with suggestions from the company. Any feedback is welcome! We are going for a traditional rectangle gunite pool design (3' to 7' depth) with a 7x10' baja shelf on the one end along with stairs. As you will see in the latest design we have played around with having the shelf extend the length of the pool on the long side but my husband thinks it is a waste and would rather have more pool. He also is interested in putting a small swimout on the farside instead. Are we missing anything, any of those options worth it? Any feedback is greatly appreciated!
Quote Details
This quote is for the construction of a traditional rectangle gunite pool. - Pool Dimensions: 15' x 40' - Pool Depth: 3' to 7' - Baja Shelf: 7' x 10' on one end with stairs - Heater: 333k BTU
You say...
Vote Distribution
These ratings are not endorsed by Quote Critic. They are submitted by other Quote Critic users like you.
More Details
Category
Pools
Price
$92,500
Quote Date
February 22, 2026
Location
New York
Heater Included?
No
Max Depth (ft)
7.0
Length (ft)
40.0
Pool Type
In-ground Concrete
Width (ft)
15.0
Comments
No comments yet
Sign in to share your thoughts and ask questions.
Similar Quotes

Build a 10x40 gunite salt water pool with spa and sun ledge
This quote is for a slightly raised, heated, gunite salt water pool with several integrated features and full automation. - Pool Dimensions: 10x40 - Pool Type: Slightly raised, heated, gunite salt water - Sun Ledge: 10x7 - Spa: 5x8 - Seating: Four bar stools - Coping: Bullnosed riviera coping - Automation: Fully automated with lighting and bubblers
Build a 15x25 pool with Baja shelf, concrete decking, and patio cover
This quote is for the construction of a new pool and surrounding features. - Pool Dimensions: 15x25 feet - Features: 5-foot Baja shelf - Interior Finish: Stone scape mini pebble - Equipment: Hayward brand - Heat Pump: Hayward 120,000 BTU heat pump with WiFi - Decking: 550 sq feet of concrete decking - Patio Cover: 100 sq foot patio cover - Water Type: Salt water system - Lighting: Hayward Colorlogic pool light, plus a smaller light on the Baja ledge - Salt Cell: Omni S3
Build a custom pool
This quote is for building a custom pool in my backyard, which has a lot size of approximately 32'x75'. The cost excludes a TV or BBQs, as I will be purchasing those separately. The design has been updated since the initial render to include several enhancements: - Deep end depth: 6 feet - Additional TV: A second TV has been added to the plan. - Travertine: More travertine has been added to fill the planter box on the right side against the home. - Pool equipment shade: A sail has been added over the pool equipment. - Pool lighting: A second pool light has been added. Both lights are RGBW "infinite watercolors" 25W lights.